Espace propriétaire

Votre recherche

Bédée (35137)

5 pièces - 106 m²

Proche des commodités maison de 106m² BEDEE

244 000 €
Ref : MJ
Découvrir le bien

Projet de construction moderne à 2 pas du centre de Bédée – Opportunité unique !

Venez découvrir ce superbe projet de construction situé à quelques minutes du cœur de la dynamique commune de Bédée. Sur un terrain de 250m², cette maison neuve de 106m² vous offrira un cadre de vie moderne et confortable.

Le rez-de-chaussée se compose d’un vaste salon-séjour traversant de 45m², baigné de lumière, et d’une cuisine ouverte, idéale pour partager des moments conviviaux en famille ou entre amis. Vous bénéficierez également d'un garage fermé avec un espace buanderie pratique.

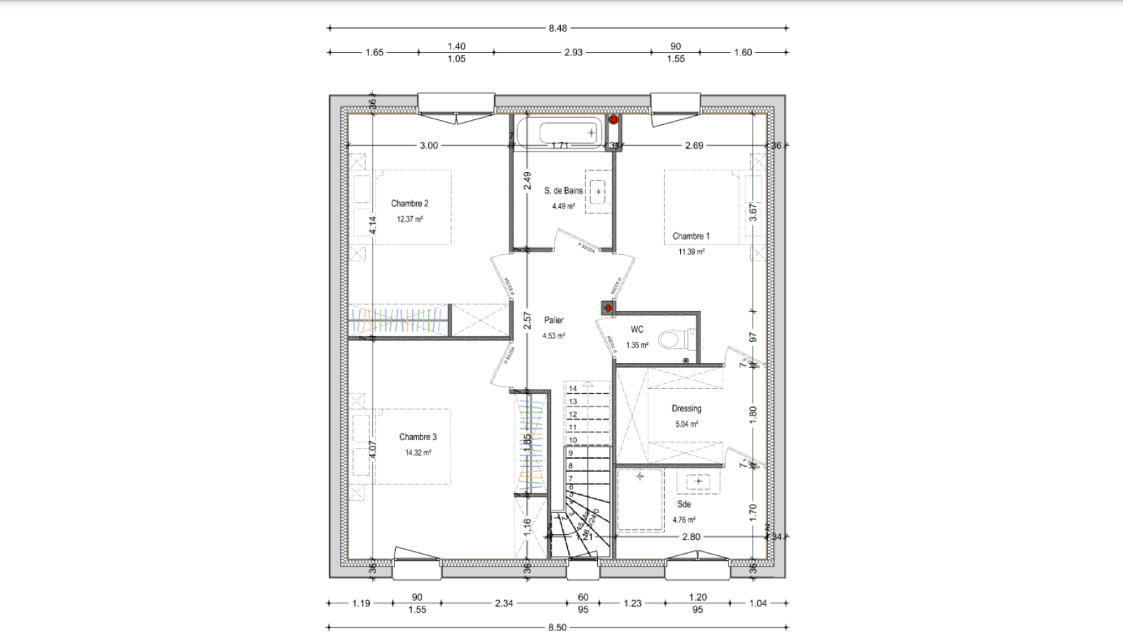
À l'étage, un palier distribue quatre belles chambres ainsi qu’une salle de bains. À l’extérieur, un jardin vous attend pour profiter des journées ensoleillées.

Cette maison respecte les dernières normes RE 2020, garantissant ainsi une performance énergétique optimale et un confort de vie inégalé.

Bonus : Possibilité d’adapter le projet avec une configuration de 3 chambres, incluant une suite parentale avec dressing et salle d'eau privative.

Ne manquez pas l’opportunité de vivre dans un environnement moderne et parfaitement situé, à proximité de toutes les commodités !

TRAD_ZEPHYR_Caracteristique TRAD_ZEPHYR_Valeurs
Code postal 35137
surface terrain 251 m²
Nombre de chambre(s) 4
Nombre de pièces 5
Nombre de niveaux 1
TRAD_ZEPHYR_Caracteristique TRAD_ZEPHYR_Valeurs
Nb de salle de bains 1
Cuisine Américaine
Mode de chauffage Autre
Type de chauffage Autre
Format de chauffage Individuel
Nombre de garage 1
Nombre de parking 2
Exposition Nord-Sud
TRAD_ZEPHYR_Caracteristique TRAD_ZEPHYR_Valeurs
Prix de vente honoraires TTC inclus 244 000 €
Prix de vente honoraires TTC exclus 235 000 €
Honoraires TTC à la charge acquéreur 3,83 %
DPE GES
Contacter pour ce bien
L'agence
Téléphone 02 21 07 73 54
Adresse
6 rue du Père Lebret 35000 Rennes

* Champ obligatoire

Les informations recueillies sur ce formulaire sont enregistrées dans un fichier informatisé par La Boite Immo agissant comme Sous-traitant du traitement pour la gestion de la clientèle/prospects de l'Agence / du Réseau qui reste Responsable du Traitement de vos Données personnelles. La base légale du traitement repose sur l'intérêt légitime de l'Agence / du Réseau. Elles sont conservées jusqu'à demande de suppression et sont destinées à l'Agence / au Réseau. Conformément à la loi « informatique et libertés », vous disposez des droits d’accès, de rectification, d’effacement, d’opposition, de limitation et de portabilité de vos données. Vous pouvez retirer votre consentement à tout moment en contactant directement l’Agence / Le Réseau. Consultez le site https://cnil.fr/fr pour plus d’informations sur vos droits. Si vous estimez, après avoir contacté l'Agence / le Réseau, que vos droits « Informatique et Libertés » ne sont pas respectés, vous pouvez adresser une réclamation à la CNIL. Nous vous informons de l’existence de la liste d'opposition au démarchage téléphonique « Bloctel », sur laquelle vous pouvez vous inscrire ici : https://www.bloctel.gouv.fr Dans le cadre de la protection des Données personnelles, nous vous invitons à ne pas inscrire de Données sensibles dans le champ de saisie libre.
Ce site est protégé par reCAPTCHA, les Politiques de Confidentialité et les Conditions d'Utilisation de Google s'appliquent.

Découvrir nos outils