Espace propriétaire
fr

Votre recherche

Saint-Erblon (35230)

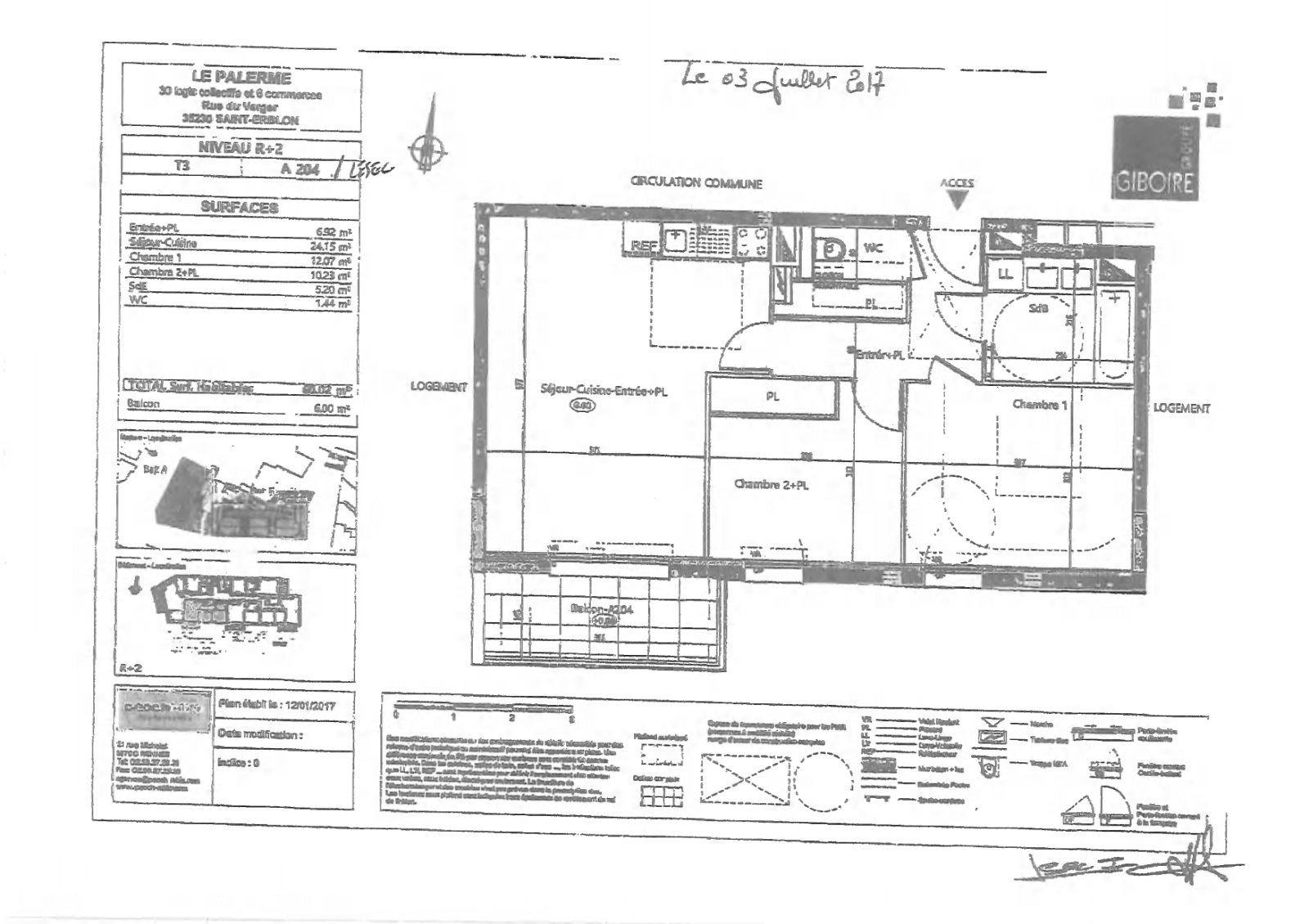
3 pièces - 60,02 m²

À louer en exclusivité – Saint-Erblon – T3 lumineux avec balcon et parking

799 € CC*
Ref : CORENTIN
Découvrir le bien

En exclusivité, découvrez Corentin, un appartement T3 de 63 m², idéalement situé en centre-ville de Saint-Erblon, à seulement 30 minutes de Rennes.

Installé au 2ème étage sur 3 avec ascenseur, dans une résidence récente de 2016, cet appartement offre une belle pièce de vie exposée plein sud, particulièrement lumineuse, avec une cuisine aménagée et équipée (plaques, hotte, four) ouvrant sur un balcon de 6 m². L’espace nuit se compose de deux chambres dont l'une avec placards, d’une salle de bains et de WC séparés. L’entrée dispose également de rangements intégrés.

Le confort est au rendez-vous avec un chauffage et une eau chaude collectifs au gaz, des volets roulants électriques, la fibre optique et un local vélos.
Deux places de parking sécurisé en sous-sol complète le bien. Les transports en commun sont accessibles à proximité.

Disponible à partir du 2 février. Location vide – Bail 3 ans (dispositif Pinel). DPE : B

Loyer : 693 € + 106 € de charges (chauffage, eau chaude, charges de copropriété et taxe d’ordures ménagères)
Dépôt de garantie : 693 € - Honoraires de location : 660 €

Un appartement agréable et fonctionnel, parfaitement adapté pour un couple ou une petite famille à la recherche d’un cadre de vie confortable et pratique.

Une visite ? Un conseil : contactez HOME TYCO – Isabelle GOULET-DURET sans tarder !

TRAD_ZEPHYR_Caracteristique TRAD_ZEPHYR_Valeurs
Code postal 35230
Nombre de chambre(s) 2
Nombre de pièces 3
Meublé Non renseigné
Etage 2
TRAD_ZEPHYR_Caracteristique TRAD_ZEPHYR_Valeurs
Nb de salle de bains 1
TRAD_ZEPHYR_Caracteristique TRAD_ZEPHYR_Valeurs
Copropriété NON
TRAD_ZEPHYR_Caracteristique TRAD_ZEPHYR_Valeurs
Loyer CC* / mois 799 €
Honoraires TTC charge locataire 660 €
Dont état des lieux 180 €
Dépôt de garantie TTC 693 €
Charges locatives (Previsionnelles mensuelles les avec regularisation annuelle) 106 €
DPE GES
Contacter pour ce bien
L'agence
Téléphone 02 21 07 73 54
Adresse
6 rue du Père Lebret 35000 Rennes

* Champ obligatoire

Les informations recueillies sur ce formulaire sont enregistrées dans un fichier informatisé par La Boite Immo agissant comme Sous-traitant du traitement pour la gestion de la clientèle/prospects de l'Agence / du Réseau qui reste Responsable du Traitement de vos Données personnelles. La base légale du traitement repose sur l'intérêt légitime de l'Agence / du Réseau. Elles sont conservées jusqu'à demande de suppression et sont destinées à l'Agence / au Réseau. Conformément à la loi « informatique et libertés », vous disposez des droits d’accès, de rectification, d’effacement, d’opposition, de limitation et de portabilité de vos données. Vous pouvez retirer votre consentement à tout moment en contactant directement l’Agence / Le Réseau. Consultez le site https://cnil.fr/fr pour plus d’informations sur vos droits. Si vous estimez, après avoir contacté l'Agence / le Réseau, que vos droits « Informatique et Libertés » ne sont pas respectés, vous pouvez adresser une réclamation à la CNIL. Nous vous informons de l’existence de la liste d'opposition au démarchage téléphonique « Bloctel », sur laquelle vous pouvez vous inscrire ici : https://www.bloctel.gouv.fr Dans le cadre de la protection des Données personnelles, nous vous invitons à ne pas inscrire de Données sensibles dans le champ de saisie libre.
Ce site est protégé par reCAPTCHA, les Politiques de Confidentialité et les Conditions d'Utilisation de Google s'appliquent.

Découvrir nos outils